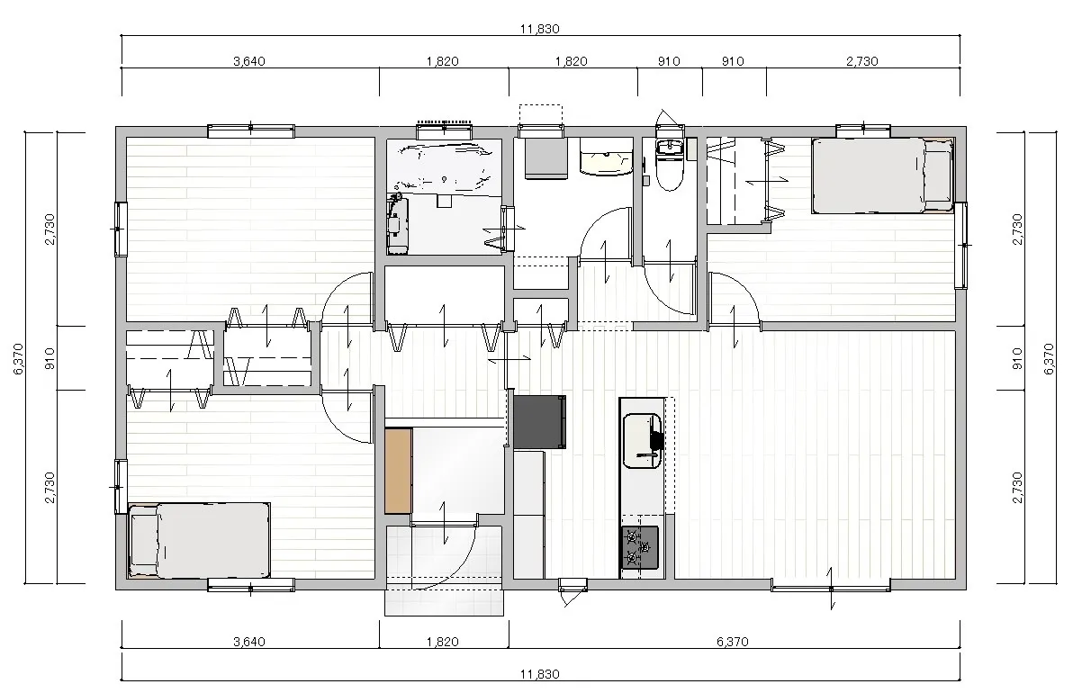
S-22C 2025/06/02 S-22C 3LDK/22.79坪 建物価格 1,146万円 (税込1,260.6万円) 付帯工事費 370万円 (税込407.0万円) 建物本体価格+付帯工事費 1,516万円 (税込1,676.6万円) 一覧に戻る